2 Ch.
1 Salles de bains
50 m2

Description

OPPORTUNITÉ AU CENTRE DE ROSES : APPARTEMENT DE 2020 AVEC GARAGE EN OPTION

Situé en plein centre de Roses, dans un quartier résidentiel calme et bien desservi, cet appartement moderne construit en 2020 est en excellent état et prêt à emménager.

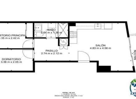
Le logement se compose de deux chambres, d’une salle de bains complète, d’une cuisine américaine lumineuse entièrement équipée et d’un salon-salle à manger chaleureux avec accès à un balcon. L’immeuble dispose d’un ascenseur et présente des finitions modernes de haute qualité.

De plus, il est possible d’acquérir un grand garage dans le même immeuble, disposant d’électricité et d’eau, avec une superficie de 52 m² et une capacité pour deux voitures.

L’appartement bénéficie encore de la garantie du promoteur, ce qui représente un gage de sécurité supplémentaire pour l’acheteur.

Une opportunité idéale comme résidence principale ou investissement, dans l’un des quartiers les plus recherchés de la Costa Brava.


Détails

  • Type de Propriété Appartement
  • Année de construction 2020
  • Orientation Sud

Distribution

  • Zone construite 50
  • Zone Terrasse 3
  • Chambres 2
  • Salles de bains 1
  • Places de parking 1

Caractéristiques

  • Climatisation Oui
  • Lift Oui
  • Parking Oui
  • Armoires Oui
  • Terrasse Oui

Certificat énergétique

  • Consommation d'énergie C 55kW h m² / année
  • Émissions C 11kg CO₂ m² / année

Situation

Calle Raval Dels Grecs, Roses


Calculer votre crédit hypothécaire

Prix du bien 199.000
Votre épargne 39.80020%
Durée 30 Années
Taxes et dépenses:
Total de l'hypothèque:
Taux d'intérêt: 4,0 %
Frais mensuels*: €/mois

Il s'agit d'un calcul indicatif non contraignant. Il est nécessaire d'envoyer les informations détaillées à la banque afin de calculer le montant exact.


Galerie de photos

3848071e73e32984903fe01bf2b7e6cb_770x460.jpg 55563d079245947e46719377efded2dc_770x460.jpg be2b44c1d54cac88dbcd08bbe770c7ab_770x460.jpg 4dd8e54c43f12a21db591bd49c4eb860_770x460.jpg a4460247f22bc4c3255adb441f73d958_770x460.jpg ff7449c9f67b54f2d7ed1932592f0f31_770x460.jpg cc9787d560979832d551a8c4f86aa240_770x460.jpg bdab27785154b196adef3d336964c6d2_770x460.jpg 269929a850dc2953235fd5f932941e6b_770x460.jpg 8928b1fbf2111f50893e51ad2f80caaf_770x460.jpg 1c08f985f4c238c5de4902953b0a67a6_770x460.jpg a9827d361ef85e60b93fa5f05839bd61_770x460.jpg e10ffd26703769e625c97bf5cb78ac82_770x460.jpg 5e6d7329bf8c07329cf2fb656f417d7f_770x460.jpg b2b239ed2edb347e9d48acabae4ccf37_770x460.jpg 514978d73e313707528e3d85b20479a3_770x460.jpg 3754264e163d8b020ca654204c2d00e8_770x460.jpg c8cdd2599c170fb971ace509ca9e040e_770x460.jpg 91dc6a07cd7ffce60059f7fff2b9ae4e_770x460.jpg b532dcb38869caab2942d8f03493d2c5_770x460.jpg 1ed637589d53534a41c5bce365d88538_770x460.jpg 173095911ccf2e8dbd8c79b08b60344f_770x460.jpg e606243c9e977d927daace66cb2c8a0a_770x460.jpg 231ebc6ef7daafb45f620a873eea89db_770x460.jpg 75c5d5c890818f585e95081f077acd66_770x460.jpg 55d8ada8f2aedcb2da00f3d27628c542_770x460.jpg 8fb97d94b60d9d77c028a5623fbe6d05_770x460.jpg 5bd5c6ad1d73c0d56f04a917034d949f_770x460.jpg 5ba46265ad59958cf019482d79ee3d87_770x460.jpg d4f976e213aedc72faee6349b8771c1f_770x460.jpg 530911c04e7fc11833942b6974a3e552_770x460.jpg 9f8b4fd801d0b4357800b11350d05790_770x460.jpg
Prix de vente: 199.000 €
Contactez

Contactez

Contactez-nous dès maintenant.

Demander plus d'informations